Precast & Rebar Detailing Services
At Prisma Engineering Services, we specialize in providing top-tier Precast & Rebar detailing services for a wide array of Precast structures. Our commitment extends beyond mere service delivery; it encompasses the creation of constructible models, detailed reports, and an extensive drawing package featuring workshop details — all meticulously crafted using the advanced capabilities of Latest Software's.
Within the realm of Precast detailing, we excel in crafting intricate models covering vital elements such as Connections, Rebar detailing, and the generation of thorough Precast erection drawings, all utilizing state-of-the-art software tools. Our unwavering dedication to precision is evident in the creation of detailed connection views, accurate bills of materials, immersive walkthroughs, and meticulously prepared shop tickets – all designed to meet the exacting standards of fabrication. Our team, comprising skilled professionals with a wealth of experience, is dedicated to ensuring that your projects not only meet but exceed industry standards.
In the sphere of Rebar detailing, we demonstrate expertise in generating comprehensive reinforcement drawings that enhance the structural integrity of your projects. Leveraging the capabilities of the latest software, we ensure precise Rebar detailing for optimal performance and compliance with industry standards. Our commitment to delivering exceptional services extends to creating detailed Rebar connection views, accurate material quantity assessments, and the production of shop tickets that streamline the fabrication process. We understand that the success of any construction project lies in the seamless integration of both Precast and Rebar detailing services.
Choosing Prisma Engineering Services as your partner means tapping into a wealth of experience, a commitment to precision, and the seamless integration of cutting-edge technology. Experience the transformative impact of our dedication to delivering top-notch detailing services as we work collaboratively to bring your Precast projects to life.
Detailing Services
PreCAST Detailing Services
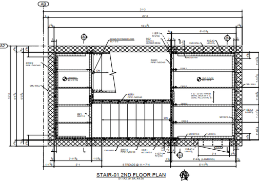
General Arrangement Drawings
Exterior & Interior Elevations
Wall Panel Layouts
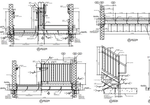
Detailed Sections
Detailed Panel Fixing and Connections
Precast Shop Drawings
Bar Bending Schedules [BBS]
Quantity Take-off
Column and Beam Detailing
Staircase and Landing Detailing
Rebar Detailing Services
Concrete BIM Modeling
Rebar Detailing
Post-Tensioned Detailing
Rebar Estimation
Bar Bending Schedules [BBS]
Bill of Materials
Intelligent Model for Concrete
Pour Planning and Coordination
Clash Detection and Resolution
As-Built Documentation
Guiding Principles of Operation
American Standards (ACI 315-99)
British Standards (BS 8666 and BS 4466)
Eurocodes (EC2)
South African Detailing Standards (SABS)
ACI : American Concrete Institute
PCI: Precast Concrete Institute
AS: Australian Standards
BS: British Standards
CISC : Canadian Standards
Euro: Euro Standards






