Precast & Rebar Detailing Services

At Prisma Engineering Services, we specialize in providing top-tier Precast & Rebar detailing services for a wide array of Precast structures. Our commitment extends beyond mere service delivery; it encompasses the creation of constructible models, detailed reports, and an extensive drawing package featuring workshop details — all meticulously crafted using the advanced capabilities of Latest Software's.

Within the realm of Precast detailing, we excel in crafting intricate models covering vital elements such as Connections, Rebar detailing, and the generation of thorough Precast erection drawings, all utilizing state-of-the-art software tools. Our unwavering dedication to precision is evident in the creation of detailed connection views, accurate bills of materials, immersive walkthroughs, and meticulously prepared shop tickets – all designed to meet the exacting standards of fabrication. Our team, comprising skilled professionals with a wealth of experience, is dedicated to ensuring that your projects not only meet but exceed industry standards.

In the sphere of Rebar detailing, we demonstrate expertise in generating comprehensive reinforcement drawings that enhance the structural integrity of your projects. Leveraging the capabilities of the latest software, we ensure precise Rebar detailing for optimal performance and compliance with industry standards. Our commitment to delivering exceptional services extends to creating detailed Rebar connection views, accurate material quantity assessments, and the production of shop tickets that streamline the fabrication process. We understand that the success of any construction project lies in the seamless integration of both Precast and Rebar detailing services.

Choosing Prisma Engineering Services as your partner means tapping into a wealth of experience, a commitment to precision, and the seamless integration of cutting-edge technology. Experience the transformative impact of our dedication to delivering top-notch detailing services as we work collaboratively to bring your Precast projects to life.

PRECAST, REBAR & BIM DETAILING SERVICES

PRECAST DETAILING SERVICES

  • General Arrangement Drawings

  • Exterior & Interior Elevations

  • Wall Panel Layouts

  • Detailed Sections

  • Panel Fixing & Connection Details

  • Precast Shop Drawings

  • Bar Bending Schedules (BBS)

  • Quantity Take-Offs

  • Column & Beam Detailing

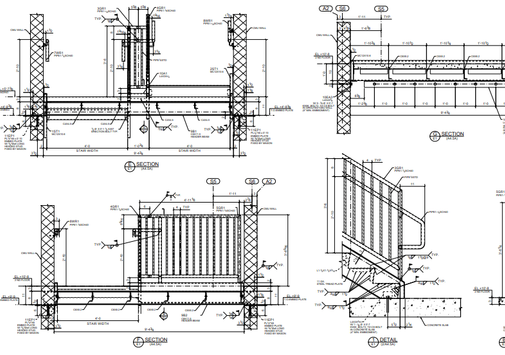
  • Staircase & Landing Detailing

Rebar Detailing Services

  • Concrete BIM Modeling

  • Rebar Detailing

  • Post-Tensioned Detailing

  • Rebar Estimation

  • Bar Bending Schedules (BBS)

  • Bill of Materials (BOM)

  • Intelligent Concrete Modeling

  • Pour Planning & Coordination

  • Clash Detection & Resolution

  • As-Built Documentation

Principles of Operation

  • American Standards (ACI 315-99)

  • British Standards (BS 8666, BS 4449)

  • Eurocodes (EC2)

  • ACI – American Concrete Institute

  • PCI – Precast/Prestressed Concrete Institute

  • AS – Australian Standards

  • BS – British Standards

  • CISC – Canadian Institute of Steel Construction

  • Euro Standards

Prisma Engineering Services
Prisma Engineering Services
Prisma Engineering Services
Prisma Engineering Services
Prisma Engineering Services
Prisma Engineering Services